東京都世田谷区成城2-39-3 (成城学園前) FMビル 詳細データ
この物件の物件番号は8785です。お電話(03-6260-6586)でお問合せの際は物件番号をお知らせ下さい。「東京オフィスMOVEを見て」とお伝えいただくと話がスムーズに進みます。※不動産業者様へのご紹介は不可です。
| 物件名 | FMビル |
|---|---|
| 沿線/駅 | 小田急線 成城学園前駅 |
| バス/徒歩 | バス:- / 徒歩:2 分 |
| 所在地 | 東京都世田谷区成城2-39-3 |
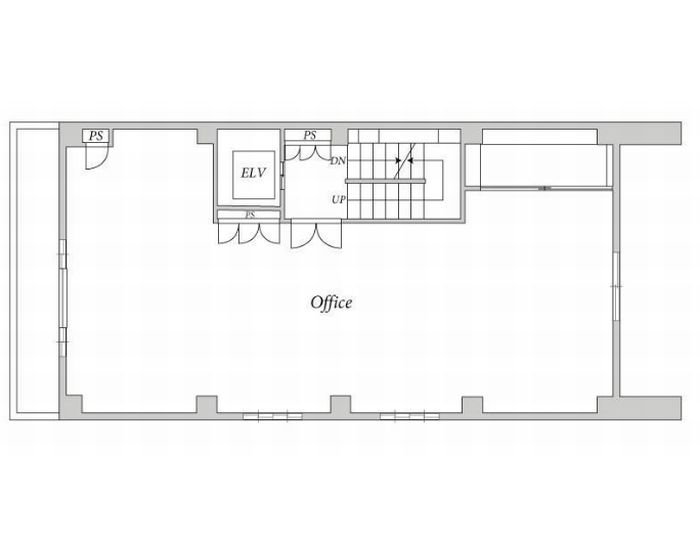
| 所在階 | 2/5 階 |
| 面積 | 35.52 坪 |
| 賃料(坪・円) | 坪 22,297 円 (総額 792,000 円) |
| 共益費 | 22,000 円 |
| 礼金 | 2 ヶ月 |
| 敷金 | 5 ヶ月 |
| 保証金 | |
| 竣工年 | 1996 年 |
| 建物構造 | 鉄骨造 |
| 駐車場設備 | - |
| 契約期間 | 2 年 |
| 入居可能日 | 相談 |
| 備考 | EV スケルトン |
![]() |
|---|
|
東京都世田谷区成城2-39-3の賃貸事務所(貸事務所)・貸店舗をお探しのお客様へご案内-このたびは首都圏最大級、貸事務所・貸店舗専門ポータルサイトの東京オフィスMOVEをご利用いただき誠に有り難うございます。事務所移転、飲食店開業や新規独立まで賃貸事務所・賃貸オフィス・貸店舗の仲介実績豊富なスタッフがフルサポート致します。東京都世田谷区成城2-39-3の大型駐車場付貸事務所、重飲食、美容院や居抜き店舗、レンタルオフィスまで貸事務所(賃貸事務所)、貸店舗を簡単に検索できます!東京都世田谷区成城2-39-3でSOHO、賃貸オフィス、一棟ビルの貸事務所の貸主・オーナー様には無料にて広告掲載いたしますので是非、お問い合わせください。その他、東京都世田谷区成城2-39-3で貸事務所・貸店舗をお探しのテナント様にはフリーレント、引越しサービスやオフィスレイアウトもアドバイス出来ますのでご相談ください。 |












